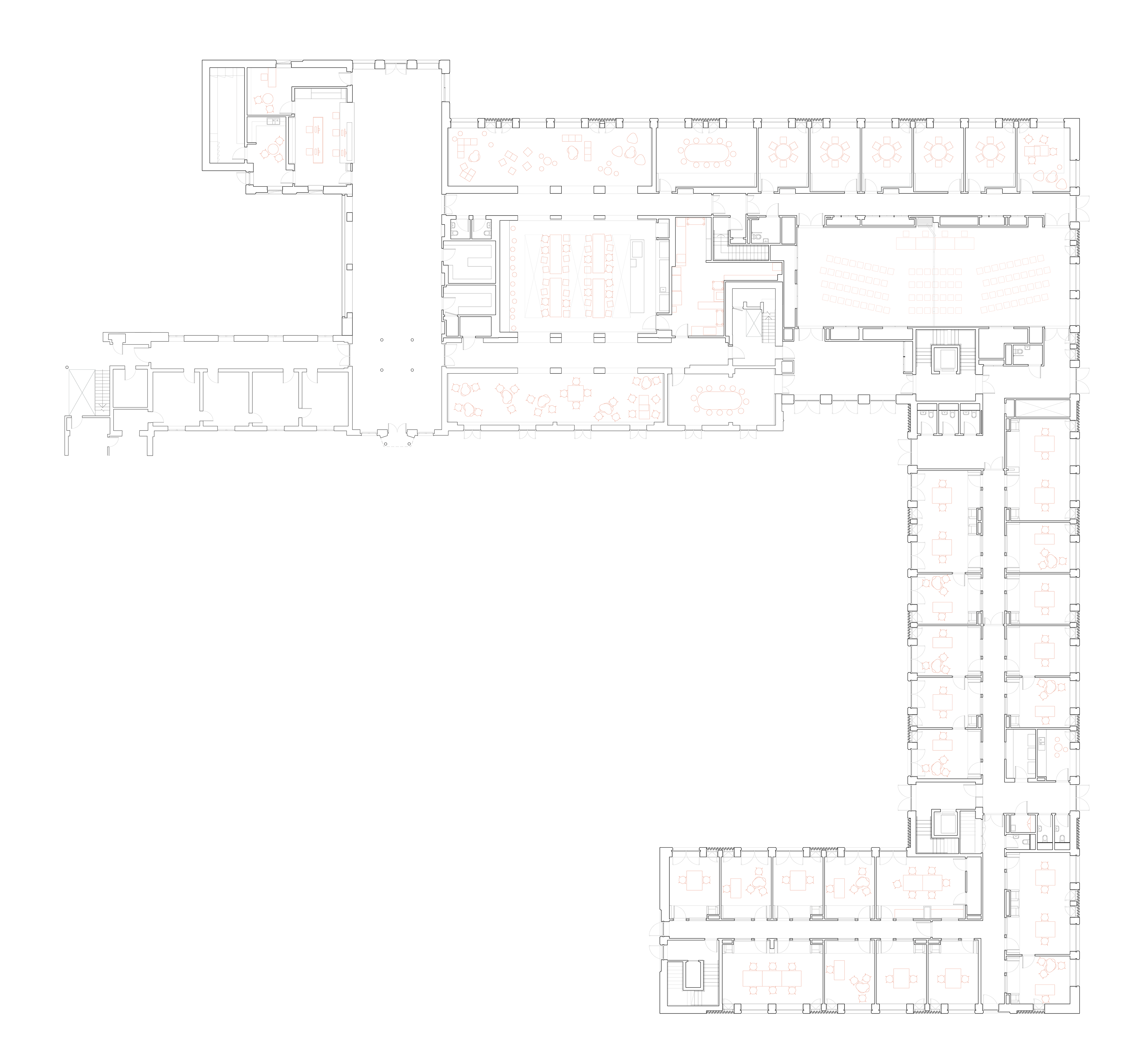
The new facilities at Newnham College are designed to provide an entrance, meeting and lecture spaces, en-suite bedrooms and a social hub for this prestigious Cambridge College. It is a three-story building, seamlessly linked with the historic building through the use of matching materials like brick. The brick facade is rich in details and ornaments, using a contemporary language to establish a dialogue with the existing construction by integrating new and old. The entrance body offers a new welcoming space and security area facing the street and gives access to the public areas of the building as they are the cafe and conference room.

Ground Floor Plan